ВАРЯГ L — будинок для сім'ї / 3–4 гостей

Сімейний заміський будинок з продуманим плануванням і терасою. Підходить для відпочинку, тривалих заїздів і оренди.

Швидка заявка

Залиште контакти — ми запропонуємо час і відповімо на питання.

Быстрая запись на просмотр (UA)

Про формат L

Формат L — це сімейний будинок для 3–4 гостей з терасою і готовою комплектацією.
Нижче — базовий набір параметрів, планування, комплектація і порівняння з іншими форматами.

Основні параметри

62 м²

Площа будинку

22 м²

Тераса

3-4

Гостя

2

Спальні

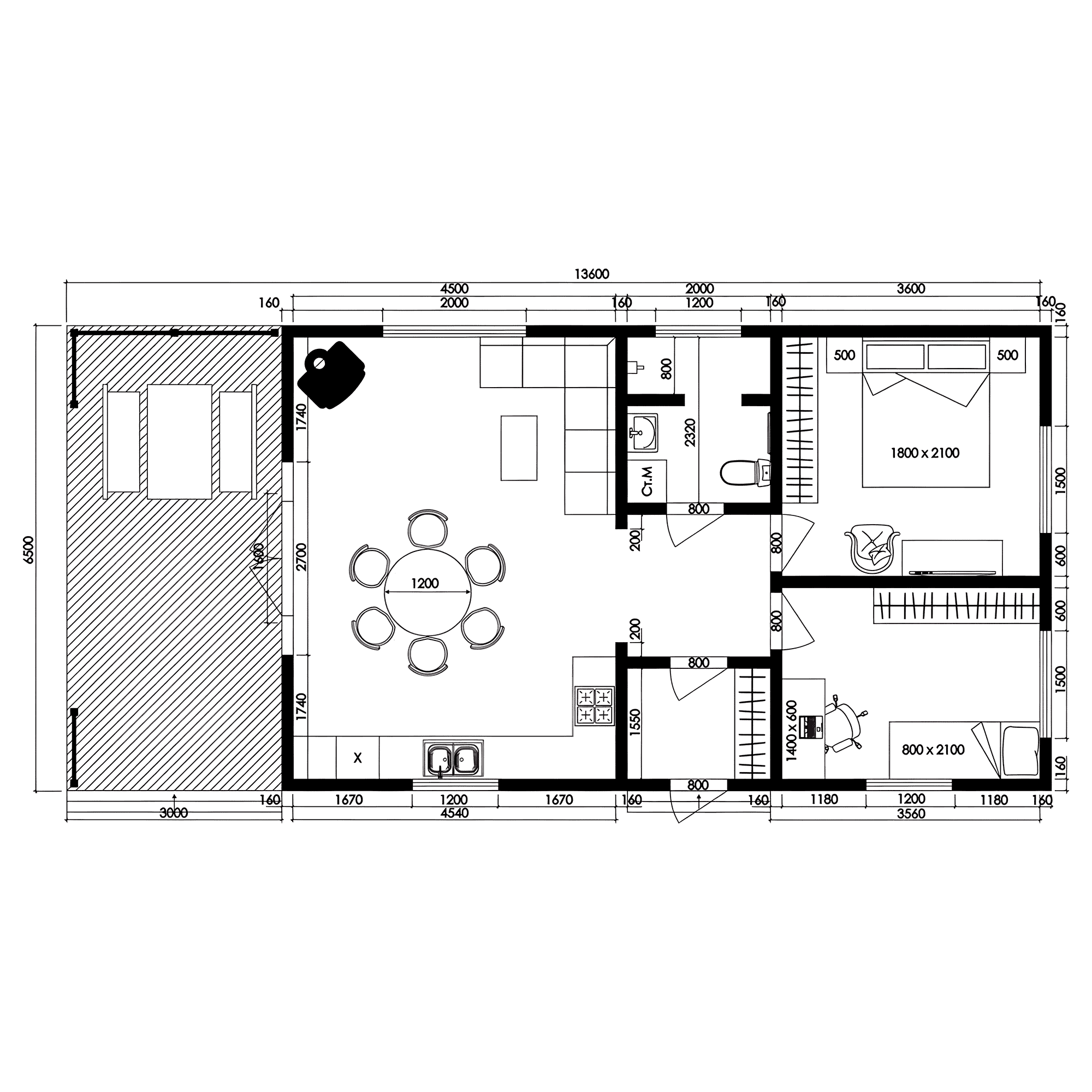
Планування проекту «Варяг L»

Комплектація

Входить у вартість

Меблі

Техніка (холодильник, плита, бойлер)

Посуд

Освітлення

Текстиль

Wi-Fi

Вуличні меблі

Зона для барбекю

Опції

Кондиціонер

Покращене оздоблення

Покращена техніка

Камін

Розумний дім

Автономність (сонячні панелі, акумулятори)

Технічні характеристики

Технологія

SIP-панелі

Утеплення

Пінополістирол

Кровля

Енергоефективна

Опалення

Електро / тепловий насос

Вода

Свердловина

Каналізація

Є

Вентиляція

Є

Сонячні панелі

Опція

Для кого підходить

Сім'ї

Комфортне планування, тераса, необхідні зони.

Пари

Затишний формат для вихідних і довгих заїздів.

Оренда

Зрозуміла комплектація, зручно здавати гостям.

Сценарії використання

Відокремлений відпочинок

Сімейні поїздки

Відпочинок компанією

Тривалі заїзди

Робота на природі

Оренда

Термін будівництва

4 місяці

Термін залежить від комплектації та черги робіт — уточнимо при записі.

Порівняння форматів

Формат
Для кого
Площа
Гості
XS
Пара
34 м²
1–2
L
Сім'я
62 м²
3-4
XL
Велика сім'я
104 м²
5-8

Бажаєте подивитися будинок наживо?

Покажемо територію, будиночки та розповімо, який формат підійде вам.

Відповімо на питання: ціна, комплектація, терміни, оренда/інвестиції.

Швидка заявка

Залиште контакти — ми запропонуємо час і відповімо на питання.

Быстрая запись на просмотр (UA)